

地点:越南
设计:KIENTRUC O
面积:16519 ㎡
年份:2020
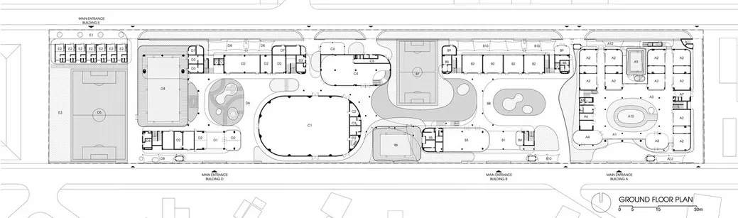
越南西宁IGC学校位于越南平原地区,地处两条重要的林荫大道间。平坦宽广的场地将每栋教学楼串联在一起,容纳着从学前班到高中教育各个阶段的教学空间。






长条形的立面开窗将自然光引入室内,并让外部独特的自然景观成为教学资源。教学楼间的开放庭院也是学生探索学习的重要教学设施。



项目在考虑每个建筑体块的功能时,关注于间隔空间的属性:或直接向上面朝天空开放、或作为外部自然景观的取景框、亦或是促进人与人以及人与不可触物件的联系。





△ 动线分析图

△ 流线分析图
* 图片来自网络,仅供学习参考!